You are using an outdated browser. For a faster, safer browsing experience, upgrade for free today.

Piso de tres dormitorios terminado en San Miguel de Salinas

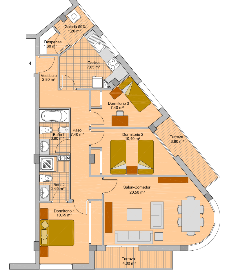
  • 3Dormitorios
  • 2Baños
  • 117m²
  • Comunitaria
El número ID:
EL1381
Dormitorios:
3
Baños:
2
Área construida:
117m²
Piscina:
Comunitaria
Distancia hasta el mar:
7000m
Tipo:
Apartamentos
Provincia:
Alicante
Ciudad:
San Miguel de Salinas
Año de la construcción:
2022
  • Suelo Radiante en Baños
  • Muebles
  • Electrodomésticos
  • PARKING
  • Sótano
MEMORIA DE CALIDADES EDIFICIO VELETA (SAN MIGUEL)
SANEAMIENTO P.V.C.
CIMENTACION : HORMIGON ARMADO

ESTRUCTURA: HORMIGON ARMADO EN VIGAS Y PILARES. FORJADO RETICULAR
CERRAMIENTOS EXTERIORES: 1⁄2 PIE DE LADRILLO HUECO DOBLE + CAMARA DE
AIRE CON AISLAMIENTO TERMICO + TABIQUE DE LADRILLO HUECO SENCILLO

REVISTIMIENTO FACHADA: LADRILLO CARAVISTA Y GRES TIPO STONKER O
SIMILAR. EN PLANTA BAJA, APLACADO DE MARMOL. RECERCADO Y
VIERTEAGUAS EN VENTANAS CON PIEDRA NATURAL/MARMOL.
CUBIERTA: PLANA INVERTIDA

PAVIMIENTOS: EN TODA LA VIVIENDA, GRES MONOCOCCION DE PRIMERA
CALIDAD. EN ZAGUAN DE ACCESO, EN PELDAÑOS DE ESCALERA Y RELLANOS, DE
MARMOL CREMA MARFIL O SIMILAR
RODAPIES: EN TODA LA VIVIENDA, GRES MONOCOCCION DE PRIMERA CALIDAD
PARAMENTOS VERTICALES INTERIORES: EN COCINA, GALERIA Y BAÑOS,
ALICATADO CON AZULEJOS ESMALTADOS DE PRIMERA CALIDAD, COLOCADOS
A JUNTA RECTA Y HASTA LA ALTURA DEL TECHO O FALSO TECHO
EN EL RESTO DE LA VIVIENDA PINTURA PLASTICA SATINADA CON ACABADO DE
GOTELE, GOTA FINA

TECHOS: FALSO TECHO DE ESCAYOLA LISA EN ZONAS HUMEDAS Y EN RESTO DE
LA VIVIENDA CON MOLDURA PERIMETRAL
PINTURA PLASTICA SATINADA CON ACABAOD DE GOTELE, GOTA FINA

CARPINTERIA EXTERIOR: VENTANAS CORREDERAS DE ALUMINIO LACADO COLOR
A DECIDIR POR LA D.F.
PERSIANAS DE ALUMINIO LACADO COLOR A DECIDIR POR LA D.F. SISTEMA
COMPACTO

CARPINTERIA INTERIOR: PUERTA DE ENTRADA A LA VIVIENDA DE SEGURIDAD, EN
MADERA MACIZA DE PINO MELIS O SIMILAR Y LACADA EN COLOR NATURAL.
PUERTAS DE PASO INTERIORES EN MADERA DE PINO MELIS O SIMILAR, LACADAS
EN SU COLOR NATURAL CON MOLDURAS HERRAJES DE MANIVELAS Y PERNIOS
LATONADOS.

MOBILIARIO DE COCINA: EN MADERA LACADA, DM. CON BANCADA DE
GRANITO ROSA PORRIÑO Y FREGADERO DE ACERO INOXIDABLE CON SU SENO Y
ESCURRIDOR.

APARATOS SANITARIOS: SERAN DE COLOR BLANCO MARCA BELLAVISTA O
SIMILAR. LAS BAÑERAS DE CHAPA ESMALTADA CON LAS MEDIDAS INDICADAS EN
LOS PLANOS. LOS PLATOS DE DUCHA SERAN ANUGLARES DE 70*70 CM, DE
PORCELANA VITRIFICADA MARCA BELLAVISTA O SIMILAR.
GRIFERIA: TIPO MONOMANDO EN TODOS LOS APARATOS, DE LA MARCA BUADES
O SIMILAR.

VIDRIOS: ACISTALAMIENTO CON DOBLE CRISTAL, FORMADO POR DOS LUNAS
PULIDAS INCOLORAS DE 4MM DE ESPESOR Y CAMARA DE AIRE DESHIDRATADA
DE 6 MM DE ESPESOR, TIPO CLIMALIT O SIMILAR.
BARANDILLAS: EN FACHASDA Y ESCALERAS CON PERFILES ALUMINIO Y CRISTAL

INSTALACION DE FONTANERIA: RED DE AGUA CON TUBERIA DE COBRE. LA
INSTALACION DE AGUA CALIENTE SE AISLARA SEGÚN PROJECTO. DEPOSITO DE
RESERVA DE AGUA Y GRUPO DE PRESION.
 INSTALACION DE TELECOMUNICACIONES: TOMAS DE TELEVISION Y TELEFONO EN
ESTAR COMEDOR, DORMITORIO PRINCIPAL Y COCINA. ANTENA COLECTIVA DE
TV. PORTERO ELECTRONICO CON UN TELEFONO INTERIOR POR VIVIENDA.

ASCENSOR: DESDE SOTANO. CON CAPACIDAD PARA SEIS PERSONAS, CON
PUERTAS AUTOMATICAS, PISO DE GRANITO Y CON LUZ Y ALARMA DE
EMERGENCIA.
AIRE ACONDICIONADO: PREINSTALACION Y ACOMETIDAS A LA MAQUINARIA DE
LA CUBIERTA

PISCINA
GARAJE Y TRASTERO

Similar

El número ID:
EL1381
Dormitorios:
3
Baños:
2
Área construida:
117m²
Piscina:
Comunitaria
Distancia hasta el mar:
7000m
Tipo:
Apartamentos
Provincia:
Alicante
Ciudad:
San Miguel de Salinas
Año de la construcción:
2022

Consúltenos sobre esta propiedad